Jednostranné výztuže typ P
Jednostranné výztuže typ P jsou určeny pro vyztužení překladů nad okenními a dveřními otvory. Výztuž nabízíme s jedním nebo dvěma nosnými dráty (dle požadavku zákazníka), které jsou spojeny bodovým svarem s kolmými příčníky.
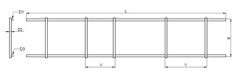
Díky flexibilní výrobě na míru dokážeme dodat jednostranné výztuže typu P v libovolných délkách od 0,98 m až do 7,50 m a se šířkou nosníku od 110 do 400 mm. Počet podélných pásnic může být od 2 do 4, přičemž jejich osová vzdálenost nesmí být menší než 10 cm. Tato variabilita umožňuje optimální přizpůsobení požadované nosnosti a detailu uložení překladu. Díky svému zpracování výztuž zajišťuje přesnou geometrii, tuhost a dlouhodobou spolehlivost v železobetonových konstrukcích.
Jednostranná výztuž typ P od spol. FERT
- možnost výroby na míru dle projektu: délka 0,98–7,50 m, šířka 110–400 mm, 2, 3 nebo 4 pásnice
- lze zvolit průměr pásnic (od 5 do 16 mm) i průměr příčných drátů (od 4 do 6 mm)
- rychlá a přesná montáž do překladu díky pevným bodovým svarům a přesné geometrii
- při výrobě používáme certifikované materiály pro železobeton
- stabilní kvalita výroby a dlouholetá praxe v oboru- betonářskou ocel a armovací prvky vyrábíme již více než 30 let
typ P
| Parametry výztuže | Označení na schématu | Rozměry výztuže | Typ použitého drátu |
|---|---|---|---|
| Parametry výztuže: Průměr pásnic | Označení na schématu: D1, D3, D4, D5 | Rozměry výztuže: 5 ÷ 16 [mm] | Typ použitého drátu: B500A, B550A, B500A-G, B550A-G |
| Parametry výztuže: Průměr příčných drátů | Označení na schématu: D2 | Rozměry výztuže: 4 ÷ 6 [mm] | Typ použitého drátu: B500A-G, B550A-G |
| Parametry výztuže: Počet pásnic | Rozměry výztuže: 2 / 3 / 4 [ks] | ||
| Parametry výztuže: Rozpětí pásnic | Rozměry výztuže: ≥ 110 [mm] | ||
| Parametry výztuže: Vzdálenost příčných drátů | Označení na schématu: V | Rozměry výztuže: 50 ÷ 400 [mm] | |
| Parametry výztuže: Šířka nosníku | Označení na schématu: S | Rozměry výztuže: 110 ÷ 400 / Standard 172 [mm] | |
| Parametry výztuže: Délka nosníku | Označení na schématu: L | Rozměry výztuže: 0,98 ÷ 7,5 [m] |
Výroba
O společnosti
Dodáváme do zemí
Naše výrobky s úspěchem vyvážíme na Slovensko, do Německa, Norska, Švédska, Polska a dalších zemí
| 30 | Let zkušeností |
| 25 | Export do zemí |










